ID CP3036996

Apartament spațios 2 camere + dressing, UPground, 82 mp, etaj 6, mobilat lux.

ID CP3036996

224,999 €

Apartament cu 2 camere de vânzare
Aviatiei, Bucuresti
82 mp
2011

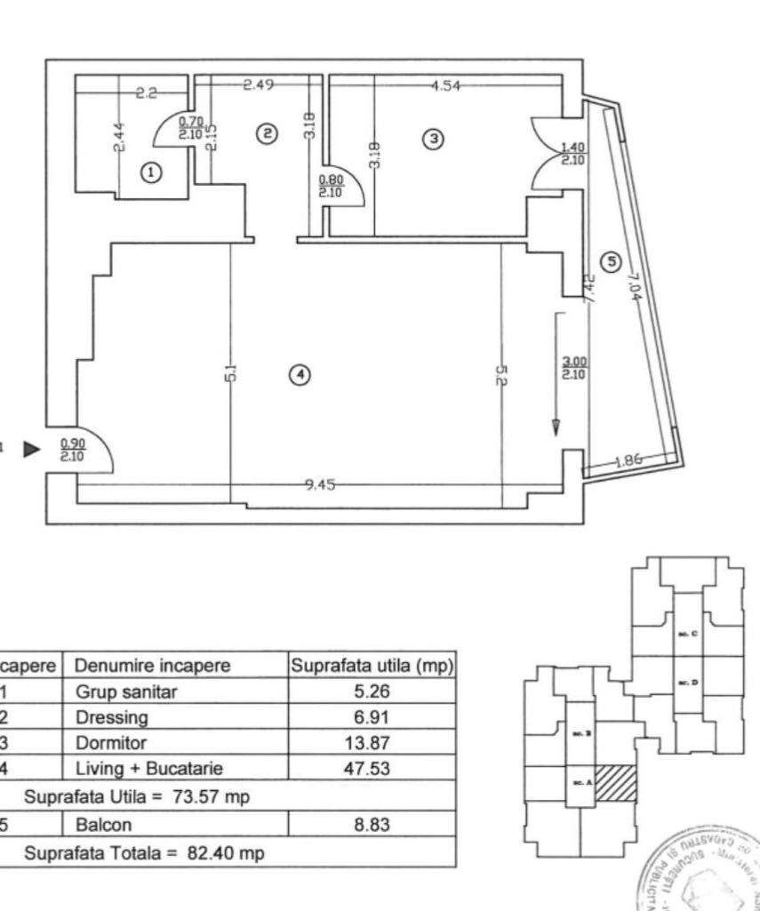
Cristal Imobiliare oferă spre vânzare un apartament spațios cu 2 camere, situat în complexul rezidențial UPground, unul dintre cele mai apreciate ansambluri din zona de nord a Capitalei. la 5 min de metrou Pipera. Proprietatea are o suprafață utilă de 82 mp, se află la etajul 6, foarte luminos, beneficiind de o compartimentare aerisită, cu bucătărie open-space și un dressing separat. Apartamentul se vinde mobilat și este potrivit atât pentru locuire confortabilă, cât și pentru investiție.

Detalii apartament:

2 camere

Suprafață utilă 82 mp

Etaj 6

Bucătărie open-space cu livingul

Dormitor spațios

Dressing separat

Baie

Balcon

Apartament mobilat

Compartimentare modernă și eficientă

Localizare:

Metrou Pipera (aprox. 5 minute)

Complex UPground

Acces rapid către zona de birouri Pipera – Barbu Văcărescu

Aproape de Promenada Mall, supermarketuri, restaurante și săli de fitness

Condiții de vânzare:

Comisionul agenției este de 2 %. Oferim consultanță imobiliară până la finalizarea tranzacției. Agenția noastră vă poate oferi consultanță bancară gratuită pentru obținerea unui credit ipotecar/Noua Casă sau alte informații bancare.

Pentru mai multe oferte imobiliare va rugam accesati site-ul:

cristalimobiliare.ro

Citește mai mult

  • Tip apartament
    Apartament
  • Compartimentare
    Semidecomandat
  • Număr camere
    2
  • Dormitoare
    1
  • Număr bucătării
    1
  • Număr băi
    1
  • Etaj
    6
  • Suprafață utilă
    82 mp
  • Disponibilitate
    Imediat
  • Confort
    Lux
  • Stare interior
    Ultrafinisat
  • Anul finisării
    2011
  • Număr balcoane
    1
  • Imobil
    Bloc de apart.
  • An construcție
    2011
  • Construcție nouă
    Da
  • Număr etaje clădire
    16

Facilități

Cristina Brinzila - Cristal Imobiliare
Cristina Brinzila
Agent Imobiliar

0770546393


Solicită chiar acum o vizionare
Telefon
Sună acum Solicită vizionare
Necesare:

Site-ul nu poate funcționa corect fără aceste cookie-uri. Vezi cookie-urile

Statistică:

Strângem statistici anonime despre voi, vizitatorii unici, pentru a vă îmbunătăți experiența dumneavoastră. Vezi cookie-urile

Marketing:

Pentru a ne promova mai eficient serviciile noastre, folosim cookies pentru a vă identifica și a vă oferi proprietăți și servicii personalizate. Vezi cookie-urile

Acest site folosește cookies, află detalii. Alege ce tipuri de cookies dorești să permitem: