ID CP2894548

Vanzare Apartament 4 camere Fântâni Bd Unirii

ID CP2894548

373,000 €

Apartament cu 4 camere de vânzare
P-ta Unirii, Bucuresti
95 mp
1995

Agentia Cristal Imobiliare vă propune o oportunitate rară de a achiziționa o proprietate cu dublu potențial, situată pe Bulevardul Unirii, inima Centrului Bucureștiului. Acest apartament, utilizat în prezent ca birou elegant, este complet renovat și oferă un cadru de lux într-o zonă de top.

I. LOCALIZARE EXCEPȚIONALĂ

Locația este privilegiată, la doar câțiva pași de principalele puncte de interes:

Vecinătăți: Palatul Parlamentului, Piața Unirii și Centrul Istoric.

Facilități: Proximitate față de multiple mall-uri, restaurante și centre de afaceri.

II. CARACTERISTICI ȘI REABILITARE COMPLETĂ

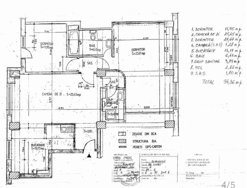
Suprafață Utila: Aproximativ 95 mp.

Stare: Apartamentul este complet renovat în 2023.

Infrastructură: Instalațiile electrice, termice și sanitare sunt integral reabilitate, asigurând standarde moderne de funcționare.

III. Configurație, Dotări și Potențial

Utilizare Curentă: Spațiul este configurat și amenajat ca birou elegant, fiind ideal pentru activități profesionale de înalt nivel.

Compartimentare: Living generos, bucătărie închisă și trei camere separate, 2 băi (una cu cadă, una cu duș).

Mobilier: Dotat cu mobilier nou și modern, integral personalizat.

Potențial: Perfect pentru cei în căutarea unui spațiu modern, fie pentru locuință, fie pentru continuarea activității de birou.

Spații Adiționale: Două balcoane luminoase și un hol primitor.

Vă invităm la vizionare pentru a experimenta eleganța și avantajele acestei reședințe!

Vizionarile se fac doar în baza semnării în prealabil a Contractului de Vizionare

Comision Agenție: 2%

Pentru mai multe oferte imobiliare va rugam accesati site-ul:

cristalimobiliare.ro

Citește mai mult

  • Tip apartament
    Apartament
  • Compartimentare
    Decomandat
  • Număr camere
    4
  • Dormitoare
    3
  • Număr bucătării
    1
  • Număr băi
    2
  • Etaj
    6
  • Suprafață utilă
    95 mp
  • Suprafață construită
    95 mp
  • Disponibilitate
    Imediat
  • Confort
    Lux
  • Stare interior
    Ultrafinisat
  • Anul finisării
    2023
  • Număr balcoane
    2
  • Imobil
    Bloc de apart.
  • Stadiu construcție
    Finalizată
  • An construcție
    1995
  • Tip construcție
    Monolit
  • Număr etaje clădire
    8
  • Are etaj tehnic
    Da

Facilități

Acces pentru persoane cu dizabilități
Acoperiș
Aer condiționat
Apă
Apometre
Aragaz
Bucătărie mobilată
Bucătărie utilată
Cabină de duș
Cadă
Calorifere
Canalizare
CATV
Contor căldură
Contor electric
Contor gaz
Curent
Dressing
Faianță
Ferestre aluminiu
Frigider
Gaz
Geamuri termopan
Gresie
Hotă
Iluminat stradal
Interfon
Internet
Lift
Mașină de spălat rufe
Mijloace de transport în comun
Mobilat lux
Mobilat parțial
Parcare biciclete
Parchet
Senzor de fum
Sistem de alarmă
Străzi asfaltate
Străzi betonate
Telefon
Telefon internațional
Termoficare
TV
Ușă intrare metal
Uși interior lemn
Vedere panoramică
Vedere spre oraș
Vopsea lavabilă
Wireless
Mirela Ion - Cristal Imobiliare
Mirela Ion
Agent Imobiliar

0745411612


Solicită chiar acum o vizionare
Telefon
Sună acum Solicită vizionare
Necesare:

Site-ul nu poate funcționa corect fără aceste cookie-uri. Vezi cookie-urile

Statistică:

Strângem statistici anonime despre voi, vizitatorii unici, pentru a vă îmbunătăți experiența dumneavoastră. Vezi cookie-urile

Marketing:

Pentru a ne promova mai eficient serviciile noastre, folosim cookies pentru a vă identifica și a vă oferi proprietăți și servicii personalizate. Vezi cookie-urile

Acest site folosește cookies, află detalii. Alege ce tipuri de cookies dorești să permitem: