ID CP3008902

Vanzare Apartament 3 Camere la 1 Minut de Mall Vitan

ID CP3008902

222,800 €

Apartament cu 3 camere de vânzare
Vitan Mall, Bucuresti
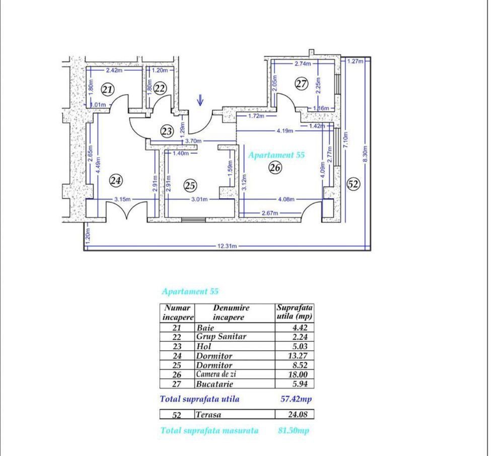
58 mp
2014

Oportunitate Investiție sau Locuință: 3 Camere în Bloc Nou (2014) – Zona Calea Vitan, lângă Mall Vitan

Agenția Cristal Imobiliare vă propune spre vânzare un apartament de 3 camere situat într-un imobil modern construit în anul 2014, în zona Calea Vitan. Proprietatea beneficiază de o locație strategică, fiind situată în imediata apropiere a Mall Vitan și a sediului poliției, oferind un mix ideal între accesibilitate și siguranță.

Detalii Tehnice și Compartimentare:

Tip Unitate: 3 Camere, complet decomandat. Suprafață: 58 mp utili, ajungând la o suprafață totală de 82 mp datorită spațiului exterior generos.

Nivel: Etajul 5 din 7.

An Construcție: 2014 (bloc nou, structură sigură).

Liniște și Siguranță:

Un avantaj major al acestui apartament este vecinătatea directă cu sediul poliției. Acest aspect garantează un mediu civilizat și liniștit, eliminând problemele citadine precum zgomotul stradal excesiv, muzica dată tare sau alte tulburări ale liniștii publice. Este locația ideală pentru cei care pun preț pe ordine și siguranță.

Elemente Distinctive și Amenajare:

Apartamentul se vinde mobilat și utilat, beneficiind de finisaje moderne și multă lumină naturală. Un punct forte este balconul impresionant care se întinde pe toată suprafața apartamentului. Acesta este închis cu tâmplărie termopan, o porțiune fiind transformată inteligent într-un dressing spațios pentru o organizare perfectă a locuinței.

Randament și Flexibilitate:

În prezent, apartamentul este închiriat unei familii serioase pentru suma de 650 euro pe lună, fiind o variantă excelentă pentru investiție cu venit imediat. Există flexibilitate deplină: puteți prelua contractul de închiriere sau vă puteți muta personal, în funcție de planurile dumneavoastră.

Locație și Accesibilitate:

Amplasarea asigură acces rapid la transportul public, parcuri și zone comerciale. Fiind situat practic lângă Mall Vitan, aveți la dispoziție magazine, restaurante și zone de relaxare la doar câțiva pași.

Proprietatea NU dispune de loc de parcare propriu.

Vă invităm la o vizionare pentru a vedea acest apartament situat într-una dintre cele mai sigure și dinamice zone ale capitalei!

Comision Agenție: 2%

Pentru mai multe oferte imobiliare va rugam accesati site-ul:

cristalimobiliare.ro

Citește mai mult

  • Tip apartament
    Apartament
  • Compartimentare
    Decomandat
  • Număr camere
    3
  • Dormitoare
    2
  • Număr bucătării
    1
  • Număr băi
    2
  • Etaj
    5
  • Suprafață utilă
    58 mp
  • Suprafață construită
    82 mp
  • Disponibilitate
    Imediat
  • Confort
    1
  • Stare interior
    Finisat modern
  • Număr balcoane
    2
  • Imobil
    Bloc de apart.
  • Stadiu construcție
    Finalizată
  • An construcție
    2014
  • Număr etaje clădire
    7
  • Are mansardă
    Da

Facilități

Aer condiționat
Apă
Apometre
Aragaz
Cadă
Calorifere
Canalizare
CATV
Contor căldură
Contor electric
Contor gaz
Curent
Faianță
Ferestre care se deschid
Frigider
Gaz
Geamuri termopan
Gresie
Hotă
Iluminat stradal
Interfon
Internet
Mașină de spălat rufe
Mijloace de transport în comun
Parchet
Străzi asfaltate
Străzi betonate
Telefon
Telefon internațional
Termoficare
TV
Ușă intrare metal
Uși interior lemn
Vedere panoramică
Vedere spre oraș
Vopsea lavabilă
Wireless
Mirela Ion - Cristal Imobiliare
Mirela Ion
Agent Imobiliar

0745411612


Solicită chiar acum o vizionare
Telefon
Sună acum Solicită vizionare
Necesare:

Site-ul nu poate funcționa corect fără aceste cookie-uri. Vezi cookie-urile

Statistică:

Strângem statistici anonime despre voi, vizitatorii unici, pentru a vă îmbunătăți experiența dumneavoastră. Vezi cookie-urile

Marketing:

Pentru a ne promova mai eficient serviciile noastre, folosim cookies pentru a vă identifica și a vă oferi proprietăți și servicii personalizate. Vezi cookie-urile

Acest site folosește cookies, află detalii. Alege ce tipuri de cookies dorești să permitem: