ID CP2890783

Apartament 3 camere , Aviației, bloc 2025, 109 mp utili + 2 balcoane.

ID CP2890783

310,000 €

Apartament cu 3 camere de vânzare
Aviatiei, Bucuresti
108.54 mp
2025

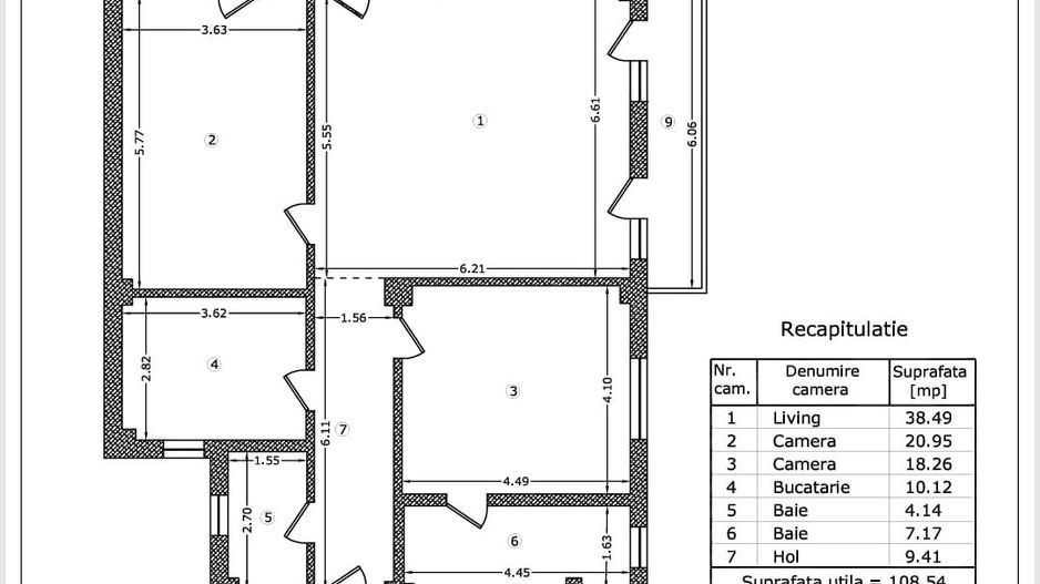
Cristal Imobiliare oferă spre vânzare un apartament de 3 camere situat la etaj 2 într-un imobil premium nou, finalizat, în zona Băneasa – Aviației. Locuința dispune de o suprafață utilă generoasă de 109 mp, completată de două balcoane, suprafata totală 118,59 ideale pentru relaxare, dining exterior sau amenajare verde. Imobilul este construit la standarde superioare, cu finisaje premium, compartimentare eficientă și dotări moderne orientate către confort și durabilitate. Este o proprietate excelentă atât pentru locuință, cât și pentru investiție, datorită amplasării într-una dintre cele mai căutate zone ale Sectorului 1.

Detalii apartament:

Suprafață utilă 109 mp + 2 balcoane (4 mp și 6,5 mp)

Living 38,49 mp – spațios și luminos

Dormitor matrimonial 21 mp

Al doilea dormitor 18 mp

Bucătărie 10,04 mp – complet mobilată

Hol

2 băi

Etaj 2 într-un imobil boutique cu 3 niveluri

Finisaje premium, tâmplărie VEKA

Construcție finalizată 2025

Pretul este de 310.000 € + TVA

Loc de parcare subteran disponibil – 15.000 € + TVA

Localizare:

Metrou Aurel Vlaicu (10 minute)

Parcul Herăstrău, zona Băneasa, Mall Promenada

Acces rapid către aeroport, centre de afaceri, școli și grădinițe (Școala Mea se află pe strada alăturată)

Transport public, supermarketuri, facilități urbane moderne

Condiții de vânzare:

Comisionul agenției este de 2 %.

Oferim consultanță imobiliară până la finalizarea tranzacției.

Agenția noastră vă poate oferi consultanță bancară gratuită pentru obținerea unui credit ipotecar/Noua Casă sau alte informații bancare.

Pentru mai multe oferte imobiliare va rugam accesati site-ul:

cristalimobiliare.ro

Citește mai mult

  • Tip apartament
    Apartament
  • Compartimentare
    Decomandat
  • Număr camere
    3
  • Dormitoare
    2
  • Număr bucătării
    1
  • Număr băi
    2
  • Etaj
    2
  • Suprafață utilă
    108.54 mp
  • Suprafață totală
    118.59 mp
  • Disponibilitate
    Imediat
  • Confort
    Lux
  • Număr balcoane
    2
  • Număr locuri parcare
    1
  • Imobil
    Bloc de apart.
  • Stadiu construcție
    Finalizată
  • An construcție
    2025
  • Construcție nouă
    Da
  • Tip construcție
    Beton
  • Număr etaje clădire
    3

Facilități

Apă
Canalizare
CATV
Curent
Gaz
Iluminat stradal
Internet
Mijloace de transport în comun
Străzi asfaltate
Telefon
Cristina Brinzila - Cristal Imobiliare
Cristina Brinzila
Agent Imobiliar

0770546393


Solicită chiar acum o vizionare
Telefon
Sună acum Solicită vizionare
Necesare:

Site-ul nu poate funcționa corect fără aceste cookie-uri. Vezi cookie-urile

Statistică:

Strângem statistici anonime despre voi, vizitatorii unici, pentru a vă îmbunătăți experiența dumneavoastră. Vezi cookie-urile

Marketing:

Pentru a ne promova mai eficient serviciile noastre, folosim cookies pentru a vă identifica și a vă oferi proprietăți și servicii personalizate. Vezi cookie-urile

Acest site folosește cookies, află detalii. Alege ce tipuri de cookies dorești să permitem: