ID CP2779812

Apartament 3 camere ,in vila, renovat total, pe strada Visinilor

ID CP2779812

669 €

Apartament cu 3 camere de închiriat
Calea Calarasilor, Bucuresti
65 mp

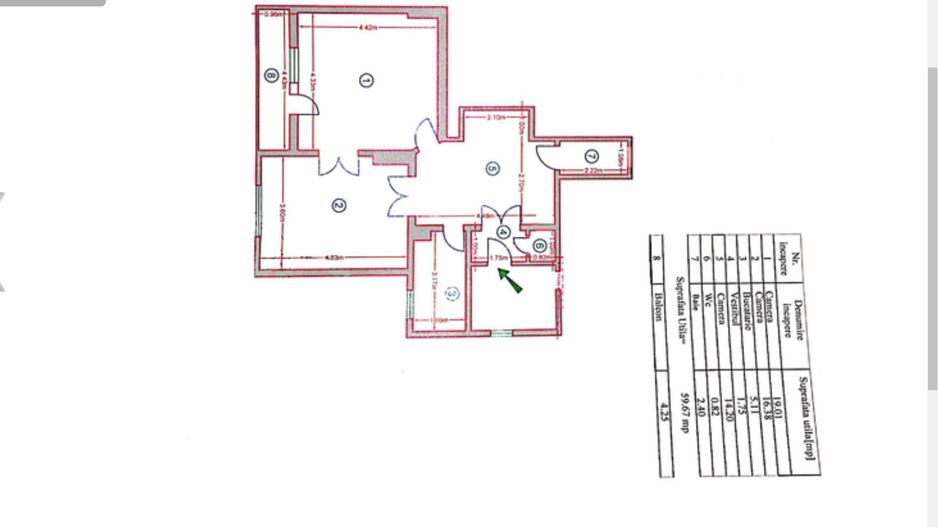
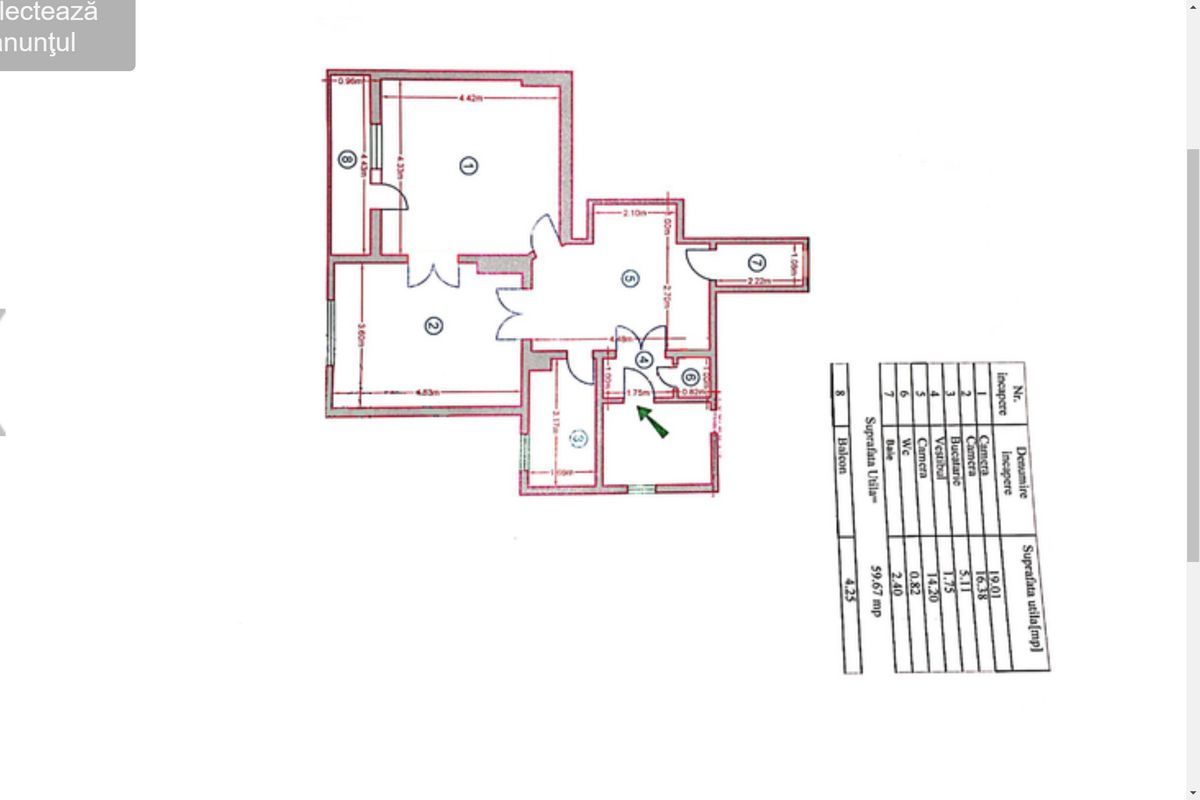
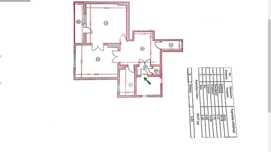
Cristal Imobiliare oferă spre închiriere un apartament spațios cu trei camere, situat la etajul 2 într‑o vilă bine întreținută pe strada Visinilor nr. 8, ideal pentru familie sau persoane care caută intimitate, confort și dotări moderne într‑o zonă liniștită, dar conectată. Apartamentul are 65 mp, este complet mobilat și utilat cu electrocasnice noi, recent renovat, cu instalații electrice și sanitare refăcute, aer condiționat și balcon. Se percepe chirie de 670 EUR net, fără animale de companie.

Detalii apartament:

3 camere spațioase, 65 mp utili

Etaj 2 în vilă, fără lift

2 băi complet renovate

Mobilat complet

Electrocasnice noi: aragaz, frigider, mașină de spălat

Aer condiționat

Geamuri termopan, instalații electrice şi sanitare noi

Balcon

TV, cablu instalat

Localizare:

Metrou – acces rapid prin stațiile de metrou cele mai apropiate (minute variabile, depinde de stație)

Mijloace de transport STB în apropiere

Magazine, supermarket în proximitate

Școli, grădinițe în zonă

Zone verzi și facilități de cartier

Condiții de închiriere: Apartamentul este disponibil imediat pentru vizionari și închiriere, pretabil pentru închiriere pe termen lung (minim 1 an). Se solicită o lună de chirie în avans și o garanție echivalentă cu o lună de chirie.

Comisionul agenției este de 50% din valoarea unei chirii. Oferim consultanță imobiliară până la finalizarea tranzacției. Agenția noastră vă poate oferi consultanță bancară gratuită pentru obținerea unui credit ipotecar/Noua Casă sau alte informații bancare. Pentru mai multe detalii și vizionări, nu ezitați să ne contactați!

Citește mai mult

  • Tip apartament
    Apartament
  • Compartimentare
    Circular
  • Număr camere
    3
  • Dormitoare
    2
  • Număr bucătării
    1
  • Număr băi
    2
  • Etaj
    2
  • Suprafață utilă
    65 mp
  • Disponibilitate
    Imediat
  • Stare interior
    Renovat
  • Număr balcoane
    1
  • Imobil
    Casă / Vilă

Facilități

Aer condiționat
Apometre
Aragaz
Bucătărie utilată
CATV
Centrală proprie
Frigider
Geamuri termopan
Mașină de spălat rufe
Mobilat complet
TV
Administrator Cristal - Cristal Imobiliare
Administrator Cristal
Manager

0799059987


Solicită chiar acum o vizionare
Telefon
Sună acum Solicită vizionare
Necesare:

Site-ul nu poate funcționa corect fără aceste cookie-uri. Vezi cookie-urile

Statistică:

Strângem statistici anonime despre voi, vizitatorii unici, pentru a vă îmbunătăți experiența dumneavoastră. Vezi cookie-urile

Marketing:

Pentru a ne promova mai eficient serviciile noastre, folosim cookies pentru a vă identifica și a vă oferi proprietăți și servicii personalizate. Vezi cookie-urile

Acest site folosește cookies, află detalii. Alege ce tipuri de cookies dorești să permitem: