ID CP2801277

Vanzare Apartament 2 Camere intre Nerva Traian si Mall Vitan, Centrala

ID CP2801277

186,000 €

Apartament cu 2 camere de vânzare
Vitan Mall, Bucuresti
57 mp
1991

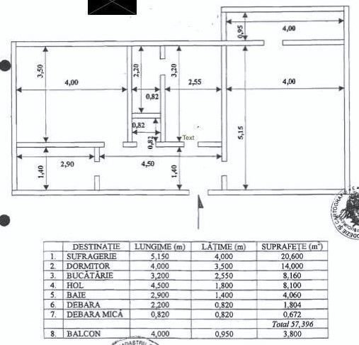
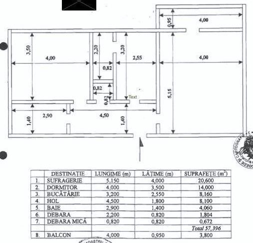
Agentia Cristal Imobiliare va prezinta un apartament de 2 camere, confort 1, decomandat, situat intre Mall Vitan si Bulevardul Nerva Traian, centrala proprie, etaj 1 din 8, 61 mp, bloc din 1991, recent anvelopat.

Comision agentie 2%

Citește mai mult

  • Tip apartament
    Apartament
  • Compartimentare
    Decomandat
  • Număr camere
    2
  • Dormitoare
    2
  • Număr băi
    1
  • Etaj
    1
  • Suprafață utilă
    57 mp
  • Suprafață construită
    61 mp
  • Disponibilitate
    Imediat
  • Confort
    1
  • Număr balcoane
    1
  • Imobil
    Bloc de apart.
  • Stadiu construcție
    Finalizată
  • An construcție
    1991
  • Tip construcție
    Beton
  • Număr etaje clădire
    8
  • Are demisol
    Da

Facilități

Aer condiționat
Apometre
Aragaz
Bucătărie deschisă
Bucătărie mobilată
Bucătărie utilată
Cadă
Contor căldură
Contor electric
Contor gaz
Geamuri termopan
Gresie
Iluminat stradal
Interfon
Izolație exterioară
Lift
Mijloace de transport în comun
Parchet laminat
Senzor de fum
Străzi asfaltate
TV
Ușă intrare metal
Uși interior lemn
Vedere spre oraș
Mirela Ion - Cristal Imobiliare
Mirela Ion
Agent Imobiliar

0745411612


Solicită chiar acum o vizionare
Telefon
Sună acum Solicită vizionare
Necesare:

Site-ul nu poate funcționa corect fără aceste cookie-uri. Vezi cookie-urile

Statistică:

Strângem statistici anonime despre voi, vizitatorii unici, pentru a vă îmbunătăți experiența dumneavoastră. Vezi cookie-urile

Marketing:

Pentru a ne promova mai eficient serviciile noastre, folosim cookies pentru a vă identifica și a vă oferi proprietăți și servicii personalizate. Vezi cookie-urile

Acest site folosește cookies, află detalii. Alege ce tipuri de cookies dorești să permitem: