ID CP2810660

Apartament 3 camere 72 mp – Bucur Obor / Bd. Ferdinand – ideal pentru birouri

ID CP2810660

800 €

Apartament cu 2 camere de închiriat
Bucur Obor, Bucuresti
72 mp
1933

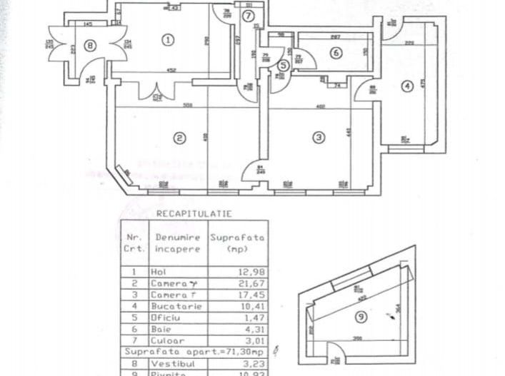
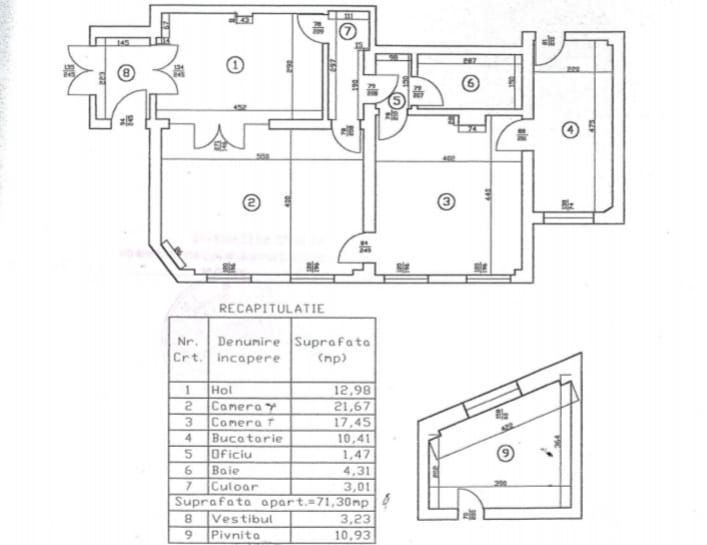
Cristal Imobiliare oferă spre închiriere un apartament spațios, cu 3 camere circulare, situat la parterul unui imobil solid construit în 1933, fără risc seismic, în zona Bucur Obor – Bd. Ferdinand. Locuința are o suprafață de 72 mp și este potrivită atât pentru locuit, cât și pentru birouri sau activități de tip office.

Apartamentul a fost recent renovat, dispune de instalații electrice noi, centrală termică proprie, aer condiționat și ferestre termopan, oferind confortul necesar într-un spațiu cu personalitate și caracter istoric.

Detalii apartament:

• Suprafață utilă: 72 mp

• Parter – acces facil, vizibilitate bună pentru firmă

• Compartimentare circulară – 3 camere + hol mare la intrare (poate funcționa ca recepție / cameră suplimentară)

• Centrală termică proprie

• Aer condiționat

• Sobe de teracotă decorative în fiecare cameră

• Pivniță + spațiu de depozitare generos

• Mobilat și utilat parțial

• Parcare liberă în fața imobilului

• Fără risc seismic

• Fără animale de companie (pot fi acceptate in schimbul unei taxe suplimentare)

• Disponibil din 15 noiembrie 2025

Localizare:

Imobilul este situat într-o zonă excelentă, la doar 8 minute de mers pe jos de metrou Obor, pe Bd. Ferdinand. Acces facil către toate punctele de interes din centrul Bucureștiului – Piața Iancului, Foișorul de Foc, Moșilor, Dacia, Universitate. În apropiere se află magazine, farmacii, restaurante, parcuri și mijloace de transport în comun (tramvai, autobuz, metrou).

Condiții de închiriere:

Disponibil din 15 noiembrie 2025. Se închiriază pe termen lung (minim 12 luni). Se solicită o lună de chirie în avans și o lună garanție.

Informații agenție:

Comisionul agenției este de 50% din valoarea unei chirii lunare. Cristal Imobiliare oferă consultanță completă până la semnarea contractului, inclusiv suport juridic și administrativ.

Citește mai mult

  • Tip apartament
    Apartament
  • Compartimentare
    Circular
  • Număr camere
    2
  • Etaj
    Parter
  • Suprafață utilă
    72 mp
  • Disponibilitate
    Imediat
  • Confort
    1
  • Stare interior
    Renovat
  • Imobil
    Bloc de apart.
  • Stadiu construcție
    Finalizată
  • An construcție
    1933
  • Număr etaje clădire
    2
  • Are mansardă
    Da

Facilități

Aer condiționat
Apometre
Bucătărie parțial utilată
Centrală proprie
Geamuri termopan
Mobilat parțial
Administrator Cristal - Cristal Imobiliare
Administrator Cristal
Manager

0799059987


Solicită chiar acum o vizionare
Telefon
Sună acum Solicită vizionare
Necesare:

Site-ul nu poate funcționa corect fără aceste cookie-uri. Vezi cookie-urile

Statistică:

Strângem statistici anonime despre voi, vizitatorii unici, pentru a vă îmbunătăți experiența dumneavoastră. Vezi cookie-urile

Marketing:

Pentru a ne promova mai eficient serviciile noastre, folosim cookies pentru a vă identifica și a vă oferi proprietăți și servicii personalizate. Vezi cookie-urile

Acest site folosește cookies, află detalii. Alege ce tipuri de cookies dorești să permitem: